Leave a Message

Thank you for your message. I will be in touch with you shortly.

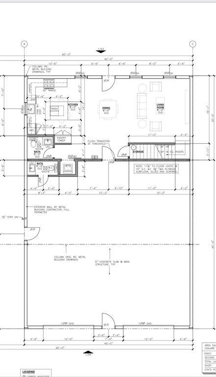
Property Description

20 Fenced Acres with Pond - Unfinished Barndominium - Utilities in Place

Escape to your own private slice of Oklahoma countryside with this 20-acre fully fenced property, featuring a peaceful pond, wide-open views, and exceptional privacy. This property offers an incredible opportunity to complete and customize your dream homestead, retreat, or country estate.

A partially completed Barndominium-style home is already in place and remains unfinished, allowing a new owner to bring their own vision to life. The property has electric, plumbing, water, and internet already on site, providing a significant head start and reducing the heavy lifting typically required for raw land development. Two separate 200-amp electric services are installed, making the property well-suited for a residence, shop, livestock setup, or additional buildings.

Extensive tree clearing has already been completed, thoughtfully designed to maintain privacy while creating usable open areas throughout the acreage. With fencing already in place and utilities established, much of the legwork has been completed--making this an exceptional value for buyers ready to finish and customize.

This property is being sold unfinished and is awaiting its opportunity to shine. A rare chance to own acreage with major infrastructure already completed in a peaceful, scenic setting.

Overview

Property Status
For Sale
Lot Size
20 Acres
MLS ID
1157156
Property Type
Residential
Year Built
2023

Features & Amenities

Architecture Styles
Barndominium
Garage Spaces
2.0
Roof
Composition
Lot Features
Interior Lot
Heat Type
Central Electric
Air Conditioning
None
Fireplace
None
Substructure
Slab
Other Exterior Features
None
Elementary School
Wanette ES
Middle School
N/A
High School
Wanette HS
School District
Wanette
Sales Price
$240,000
Real Estate Tax
$30/yr

Downloads

41500 Wright Road

Schedule a Tour

I  would love to help you see this beautiful home! As a full-service brokerage, I can help you tour. Please submit an offer, and answer questions about the buying process.

Thank you

for your interest in 41500 Wright Road, Wanette, OK 74878

41500 Wright Road
Navigate
  • This property offers an incredible opportunity to complete and customize your dream homestead, retreat, or country estate.

    Allie Webb

Mortgage Calculator

Estimate your monthly mortgage payment, including the principal and interest, property taxes, and HOA. Adjust the values to generate a more accurate rate.
$0,000 Your Payment 20 15 65
$0,000 Your Payment

I'm Interested In

41500 Wright Road

or
  • CallAllie Webb

    License #206897

    (405) 317-5841
  • Follow Us On Instagram